
浙江臺州普渡智能裝備有限公司
白金會員
已認證

浙江臺州普渡智能裝備有限公司
白金會員
已認證
“限制進入屏障系統或隔離器有助于確保所需條件并最大限度地減少與關鍵區域直接人為干預相關的微生物污染。在CCS中應考慮它們的使用。”——2022版歐盟GMP附錄1《無菌藥品生產》
01
歐盟發布GMP附錄1《無菌藥品生產》,隔離器在無菌藥品生產中的作用愈發受到國外藥政青睞
近年來,抗體藥物發展勢頭強勁,全球市場規模已超千億美元,約占整個生物藥市場份額的40%,并且還在持續增長。由于抗體藥物在臨床上大多以注射給藥的方式使用,因此無菌制劑的產量亦隨之加大,其質量要求將越發嚴格。值得關注的是,2022年下半年,歐盟正式發布了GMP附錄1《無菌藥品生產》,對無菌藥品的污染控制策略(CCS)有了更為嚴格具體的要求,其中重點描述了隔離器與限制進入隔離系統的內容,包括背景級別的選擇、隔離器中的氣流方向、手套的管理和消毒等。
由此可見,隔離器在無菌藥品生產中的作用愈發受到國外藥政推崇,而國內GMP和歐盟GMP本屬同源,在該法規執行后,為提高行業內的無菌保障水平,國內GMP法規很有可能會隨之改變,隔離器亦將在我國無菌藥品生產領域得到更為廣泛的應用。
值得一提的是,臺州普渡機械設備有限公司(以下簡稱“普渡機械”)經過多年的探索研制、升級迭代,其高活、無菌粉碎隔離器整體解決方案完全可以應對日漸嚴格的技術要求與無菌要求,解決藥企痛點問題。

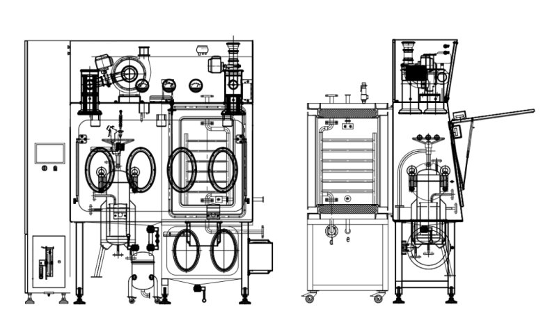
普渡機械高活、無菌粉碎隔離器
02
普渡機械高活、無菌粉碎隔離器,助力藥企降低無菌藥品生產風險
普渡機械以突出的自加工能力,解決隔離器供貨周期長、品質保障難的問題
普渡機械在與藥企交流時發現,能夠應對突如其來的訂單需求,短時間內保質保量的提供所需設備是其在選擇隔離器時關心的重點問題之一。事實上,現在市場上不少隔離器的內部配套設備均為外部采購而來,質量得不到保障的同時還容易出現供貨周期長的問題。
而普渡機械強大的自加工能力則讓問題迎刃而解,要知道普渡機械擁有12000㎡的生產基地,配備激光切割、焊接、拋光精雕等多種設備,擁有完備的設計團隊、加工團隊,能夠根據客戶的產品工藝流程實現靈活定制,滿足客戶的各種加工需求。其高活、無菌粉碎隔離器配套的粉碎設備、細粉系統以及粗粉系統模塊設備等就均為自加工,不但能夠配合客戶工期更加快速的完成生產,還可以保障品質的可靠性以及售后服務的及時性。

粉碎分裝

過濾干燥
普渡機械以靈活的模塊化設計,解決隔離器設備放置受廠房空間、布局限制的問題
除此之外,普渡機械還注意到,藥企在選擇隔離器設備時,通常受到廠房空間、布局的限制,若設備占用空間過大,則會出現無法放置的情況。
于是,普渡機械高活、無菌粉碎隔離器采用模塊化設計可為客戶提供個性化定制,實現分段安裝,以不同的組合形式滿足不同廠房的布局需求,充分利用空間。同時,模塊化設計設備亦具有良好的便利性,單個模塊更易于拆卸、升級以及運輸。

客戶現場
普渡機械以全自動控制、OEB 5等級、氮氣循環,保障藥品生產質量以及操作人員安全
普渡機械的工作人員告訴信銷傳媒:“此高活、無菌粉碎隔離器還配備了全自動控制程序,可實現自動清洗、自動拆包、自動粉碎、自動包裝等操作,客戶僅需將準備好的原料放入即可,能夠有效降低人工成本,保障操作人員安全的同時還可以杜絕人為差錯,保障藥品生產質量。
在此基礎上,為進一步保障安全性,普渡機械高活、無菌粉碎隔離器能夠達到最高OEB 5等級要求,OEL值(職業接觸限值)≤1μg/m3。

表內信息源于《藥品共線生產質量管理指南(征求意見稿)》
并提供氮氣系統的保護措施,藥企可根據工藝需要有選擇性地使用。氮氣循環保護是普渡機械的發明專利之一,能夠有效預防因易燃易爆物料而產生的安全隱患,同時起到降低成本的作用。

未來,隨著我國對無菌藥品的生產要求愈發嚴格,具有安全性高、投入運行成本低等顯著優勢的無菌隔離器,必將成為無菌藥品生產的首選設備之一。放眼國外,除歐盟外,美國FDA在查廠過程中亦認為有無菌隔離器的無菌生產線無菌保障性更高,美國FDA工業指南-用無菌工藝生產的無菌藥品中還明確指出:“良好設計的正壓隔離器,在恰當程序的維護、檢測和管理下,包括微生物污染方面比傳統的無菌工藝操作具有顯著的優勢”。由此,在與國際市場的競爭中,無菌隔離器的應用和革新亦將成為各個藥企的關注重心。
最新動態
更多
虛擬號將在 秒后失效
使用微信掃碼撥號