中國粉體網訊 自20世紀70年代以來,鋰離子電池作為一種新型的儲能電池逐漸受到人們的青睞并迅速發展起來。動力鋰離子電池具有能量密度高、循環次數多、壽命長、能耗低、污染小、無記憶效應以及自放電小、內阻小、性價比高等優點,廣泛應用于手機、筆記本電腦、電動汽車、航天等領域,與此同時,也存在安全性能差、單體電池一致性差等缺點,其中單體電池一致性是衡量動力鋰離子電池性能好壞的關鍵指標。
由于市場的需求,動力鋰電池多為成組使用,對產品一致性的要求要遠高于普通消費類電子產品,因此需更加嚴格地控制鋰離子電池生產過程,即對生產鋰離子電池工藝及設備要求更高,繼而保證生產出來的單體電池具有高度一致性。
鋰離子電池的生產工藝流程主要包括:漿料制備、涂布、輥壓、制片、卷繞、注液、化成、分容、測試、包裝等。每個工序都會影響電池的一致性及安全性等各項性能指標。而漿料制備作為鋰離子電池生產的第一步,其重要性不容小覷。
鋰離子電池的電極制造中,對電池漿料的主要要求是:分散均勻一致,假設漿料分散不均,會出現嚴重的團聚現象,這最終對電芯的電化學性能會造成非常大的影響;其次,漿料要有良好的沉降穩定性和流變特性,滿足極片涂布工藝的要求,通過涂布得到厚度均一的涂層。因此選擇合適的混料工藝對鋰離子電池的生產至關重要。
目前,電極漿料的混料工藝分為濕法混料和干法混料兩種:濕法制漿工藝在國內鋰離子電池行業中采用比較廣泛,近幾年,部分廠家開始進行干法混料實驗,發現干法混料更有優勢。在濕法混料工藝中,一般都選擇雙行星真空攪拌機作為主流鋰離子電池漿料的攪拌設備。
在鋰離子電池制造過程中,傳統制漿設備主要以行星攪拌機為主。按照攪拌軸的數量可以分為單軸攪拌機、雙軸攪拌機、三軸行星式攪拌機等。雙軸、三軸攪拌可以用于粘稠物的攪拌混合。目前市場上采用較多的是獨立雙軸的設計。

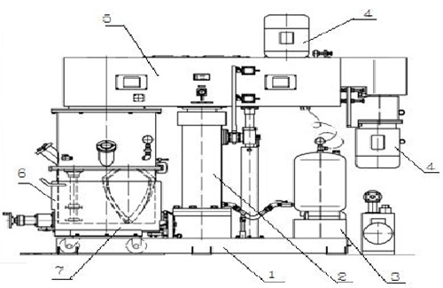
雙行星真空攪拌機示意圖
1—機架;2—升降油缸;3—液壓站;4—傳動電機;
5—控制柜;6—攪拌桶;7—攪拌槳葉
雙行星攪拌機的作用機理是:在動力機組驅動下,攪拌機葉片沿固定方向旋轉,此時物料在葉片的推動下做軸向旋轉和徑向旋轉,同時存在軸向運動和圓周運動,因而在這種情況下會出現剪切攪拌和擴散攪拌的多種混合方式,以達到物料混合均勻的目的。

傳統的攪拌系統存在以下不足:槳與桶壁、槳與桶底之間存在間隙,存在攪拌死角。
鋰離子電池漿料是一種漿體狀的正負極物質,它是由特定的粘合劑、導電劑、溶劑分別與粉末狀的正負極活性物質按照一定比例,經過充分攪拌,混合分散均勻而制成的。
根據文獻可知現有的工藝可歸納為原材料的預處理、混合分散、稀釋、脫泡以及過濾等六道工序。其中原料的預處理包括對正負極活性物質、粘結劑、導電劑、NMP等材料進行選配以及脫水干燥等一系列處理;混合分散工藝具體包括粘合劑、導電劑及活性材料的球磨、漿料的預混合攪拌以及高速分散等等;稀釋即向混合好的漿料加入溶劑,調整為合適的濃度,便于涂布。就上述漿料制備工藝而言,其關鍵在于混合分散工藝及設備的研究。
常見的正極活性材料有鈷酸鋰、鎳鈷錳三元材料、錳酸鋰以及磷酸鐵鋰等。正極漿料制備具體工序如下:首先,將所需漿料組分按照一定的比例準備好,然后將其中的固體組分(除粘結劑外)在干燥固態條件下充分混合;將經過預處理(主要包括脫水、烘干等)的PVDF、溶劑以及混合好的干燥固體粉末一起放入攪拌設備內進行混合分散,然后通過多次添加溶劑對漿料粘度進行調整,最后制備出所需的鋰電正極漿料。負極漿料制備使用材料與正極不同,但是,負極漿料生產工序與正極漿料生產工序基本相同,不再贅述。
與國外相比,我國在鋰電池的制造設備上仍有很大的差距,并且沒有一個統一的生產標準,新能源電動汽車關鍵核心部件的動力鋰電池是制約其發展的技術瓶頸,它存在續航能力不足、電芯一致性差、生產成本高等方面的缺點。近年來,部分學者在行星式攪拌設備上進行了大量的研究,也提出了許多改進方案。國際上,德國、美國等國在分散工藝設備的研究方面取得了比較顯著的進展。
古斯塔夫•愛立許機械制造公司成立于1863年,歷經150多年,從研磨機制造廠逐漸成長為一個國際化的集團公司。公司自1870年開始專業生產混合機,經過100多年的不斷研究發展,現擁有世界上領先的混合技術。德國愛立許作為攪拌機行業的引領者,用戶遍布很多領域,被廣泛應用于顆粒、粉狀材料的混合攪拌均化。
愛立許強力勻漿機設備,因獨特的打漿技術原理,能夠滿足客戶電極漿料干混、打漿和除泡在一臺設備中完成,適合大規模工業化生產的需求。
干混、打漿一體化設備的主要優勢:高效控制輸入混合物的機械能和與其相關的剪切力;徹底打開原料中的聚團;均勻分散粘結劑;直接加濕活性材料、導電炭黑和添加劑,并得到最佳效果;在線控制及調節漿料粘度;極短的制備時間,30分鐘/批次;自動連續工藝監控,可以保證漿料最佳質量和一致性;控制系統可視化界面和數據記錄,包括溫度、壓力和輸入的機械能。

時至今日,愛立許的很多設備在全固態電池的正極材料、電解質制備、鋰電池前驅體和正極材料包覆、負極材料制備、鋰電池漿料制備和高固含和純干電極等領域,均有應用。另外,公司還可以為鋰電池行業客戶提供一機多用私人定制的解決方案。在即將召開的第三屆高比能固態電池關鍵材料技術大會(2022年2月22-23日,武漢)上,愛立許的金蔚經理將為大家詳細介紹愛立許高效混合技術在固態電池關鍵材料制備中的應用進展。
參考文獻
1、郭宇蓉. 鋰電池漿料攪拌與涂布工藝的仿真及實驗研究
2、周鳳滿. 鋰離子電池漿料雙螺桿混合與高速分散工藝研究
3、劉琴. 動力鋰離子電池漿料制備工藝及設備研究
4、中國粉體網等
(中國粉體網編輯整理/青黎)
注:圖片非商業用途,存在侵權告知刪除
















